「何をしているんだろう?」街中で見かける測量の正体


記事の著者
Ryuto.M
街中でたまに見かけるこれ。
何の道具か、知っていますか?


長い棒と謎の機械
こんにちは
広報の増永です。
空き地や道路の端で
機械を覗いたり長い棒を持っていたり
そんな光景を目にしたことありませんか?
ハウスメーカー入社前の自分では
正直何をしているのか
皆目見当もつきませんでした。
実はこれ―――
土地の高低差を測っているんです!
と、聞いても最初はピンときませんでした。
そこで今回は住宅事業部幣旗さんの
現地調査に同行し
実際に測量している様子を見てきました!
自分の目で見て、調査をする。
土地の計画を立てる際、
販売資料や土地の図面は入念に目を通しますが
実際に現地へ行き
自分の目で見て確認していく作業が
とても大切です。

例えば、土地の境界がわかる「境界石」。
細かな位置や数編状況は、
現地を見なければわからないことが
多くあります。
また、長さを実際に諮ることも
大事な工程の一つです。
当社では、
土地が現状どうなっているのか
境界周辺に障害物がないか(木とか)
土地自体に傾斜がないかどうか
しっかりと営業、設計が連携して
確認していきます。
ここで出てきましたね
”土地の傾斜”
冒頭に登場した写真は
その”高低差”を正確に測るための
「レベル」という機械でした。

水平に据えたレベルを覗き
目盛りのついた「スタッフ」という
棒を見ることで
レベルを置いた基準値からどれくらいの
高低差があるかを測定することができます。

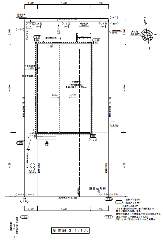
図面のそんなところに!?
計測した数値は図面に反映されます。

こちら、一般的な建物の
配置図になりますが
注目してほしいのは
楕円で囲まれている中の数字

(±)で表されているのが
基準からの高低差です。
ちなみにその基準のことの
BM(ベンチマーク)といいます。
先ほどの図面で言うと

左から右にかけて
緩やかに坂になっていることがわかります。
何をどのようにして調べているのか。
入社した当時、
図面の見方は教わったものの
その数値をどうやった出したのか
まさか自分の足ではかりに行っている
なんて思っていませんでした。
今回同行させてもらったことで
より家づくりに対する
理解が深まった気がします。
図面のなど、
一見難しく見えるものでも
見方がわかると
家づくりがより一層楽しいものに
なっていくと思います。
これからも広報室では
会社としての動きだけでなく
知っておくと得することや
家づくりのちょっとした
スパイスになることを
取材を通してお伝えできればと思います。
次回のブログもお楽しみに!
記事の著者

Ryuto.M
大進ホームって「どんな会社なの?」「どんな人がいるの?」「どんなお家が建てられるの?」そんな疑問にインターネット、SNSなどいろんな力をつかって「うちの会社はこんな会社です!」と伝える仕事となります。 お客様と直接お話しする機会は少ないですが、お客様のために誠心誠意頑張りたいと思います。


